2D & 3D BIM Plans

Villa Wood

Year: 2025

For Villa Wood, our mission was to modernize architectural documentation by converting original, decades-old paper plans into a comprehensive digital format. Using ArchiCAD, we recreated the entire building layout as precise 2D drawings and developed a detailed 3D BIM model. Every structural element was meticulously modeled to include all relevant properties and attributes, ensuring the digital environment reflects the true complexity of the existing structure.


The result is an up-to-date and fully editable BIM system that offers superior clarity and efficiency. This robust model now serves as a reliable foundation for planning, renovation, and facility management, streamlining all future project phases and providing stakeholders with immediate access to vital building data and insights.

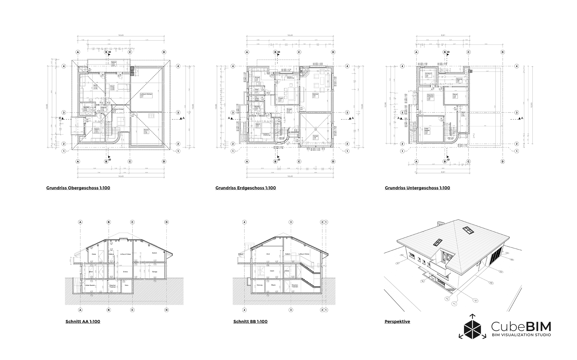
Villa Wood

Single Family House

Year: 2025Plot Area: 900 m²Built Area: 225 m²

For this project, we designed a bespoke single-family home reflecting our client’s unique lifestyle. We developed several design options, ensuring collaborative refinement of every requirement. Our design process emphasized creative solutions focused on practical needs and site character. We managed planning phases up to LP4, delivering meticulously crafted 2D plans and robust 3D models using ArchiCAD.


The result is a highly personalized residential design balancing aesthetics, functionality, and technical excellence—setting the stage for a smooth construction process and a living space tailored specifically to our client’s wishes.

Single Family House

House Renovation

Year: 2025Area: 450 m²

In this project, we transformed an existing home by converting original paper plans into accurate digital drawings using ArchiCAD and BIM technology. Our team meticulously recreated the building in 2D and 3D, ensuring every structural detail was faithfully captured. This digital reconstruction provided all necessary information for the planned renovation and repurposing.


The resulting BIM model provides a comprehensive foundation that optimizes renovation, supports precise decision-making, and facilitates effective collaboration among stakeholders, ensuring the renewed home meets today’s standards while respecting the original structure's integrity.

House Renovation

Circular Construction Study

Year: 2025Type: Research & Development

This project was a comprehensive study dedicated to developing an innovative, circular building method. Our objective was to design a modular system that allows structures to be easily constructed and later fully deconstructed (reconstructed backwards), promoting maximum sustainability and material reusability.


Using advanced BIM technology, we modeled the modular components alongside detailed assembly and disassembly sequences. This 3D BIM approach ensures that every architectural element is accurately tracked for future reuse, significantly reducing construction waste and paving the way for a true circular economy in modern architecture.

Circular Construction Study

Our Process

1

Input & Audit

We analyze your paper archives, PDF blueprints, or DWG files to assess structural complexity and missing data.

2

Digital Reconstruction

Using ArchiCAD, we reconstruct the building with absolute precision, creating a "Digital Twin" of the existing structure.

3

Attribute Management

We enrich the model with metadata (LOD 200-350), classifying elements like load-bearing walls, windows, and MEP zones.

4

IFC Export & Delivery

Final delivery includes native ArchiCAD files (.pln) and Open BIM (.ifc) formats for seamless collaboration.

Pricing Models

Small Scale

Single Family BIM
  • Paper to BIM ArchiCAD
  • Precise 2D Documentation
  • Detailed 3D Structure

Architecture

Multi-Unit Package
  • Complex residential/office
  • Full attribute management
  • Collaborative IFC export

Enterprise

Enterprise BIM
  • Commercial & Industrial
  • Planning Phase LP 1-4
  • Native Teamwork setup

Technical FAQ

Which file formats do you deliver?

We primary deliver native ArchiCAD files (.pln) and standardized Open BIM formats (.ifc). We also provide .dwg and .pdf exports for traditional planning workflows.

Can you work from low-quality paper plans?

Yes. Even if plans are old or partially damaged, our architectural team can reconstruct the logic of the building based on standard structural rules and available dimensions.

What Level of Development (LOD) is standard?

Our standard BIM conversion is LOD 300, providing accurate geometry and relevant technical data for architecture and renovation. Higher LODs are available on request.

Get in touch.